Extension surélevée d'une maison à Andrieu (14250)

Besoin client

Propriétaires à Andrieu (Calvados), nos clients souhaitaient agrandir leur espace de vie. La maison étant implantée sur un terrain en pente, nous leur avons proposé de créer une extension au pavillon formant par la même occasion un préau.

Projet

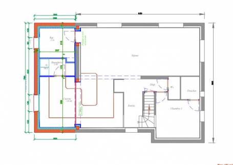
L’extension a été édifiée au niveau du rez-de-chaussée et adossée à l’un des murs pignons. Elle forme donc un préau au-devant de l’entrée du garage. Des travaux de terrassements ont permis de préparer le lieu d’implantation. L’extension repose sur des murs latéraux et un poteau central.

À l’intérieur de cette extension, ont été aménagés une buanderie et un bureau, le surplus ayant permis d’agrandir considérablement la cuisine qui a été entièrement rénovée.

Enfin, des travaux d’aménagements extérieurs ont été réalisés avec la création d’allées de jardin aussi bien piétonnes que carrossables.

Les plus

Une grande et magnifique cuisine ainsi qu’un bureau et un coin buanderie… Nos clients ont gagné bien plus que des mètres carrés avec cette construction d’extension. Ils profitent désormais d’une maison plus confortable et mieux aménagée… un bénéfice dont ils tireront également profit le jour de la revente !

demander un devis gratuit